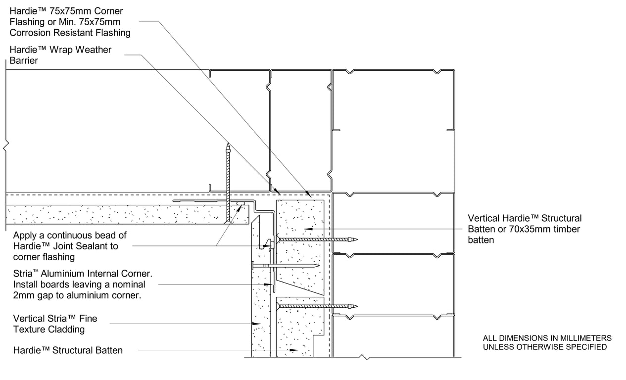
AU-HAC-PANEL BOARD-DF-017 - PANEL TO WEATHERBOARD - EXTERNAL CORNER HORIZONTAL JUNCTION DIRECT FIX

 Image of AU-HAC-PANEL BOARD-DF-017 - PANEL TO WEATHERBOARD - EXTERNAL CORNER HORIZONTAL JUNCTION DIRECT FIX

Detail Download. 2D Details / Drafting Views accompany the 3D content and allow for detailed technical construction documentation.