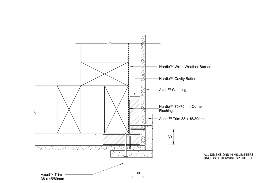
AU-HAC-PANEL BOARD-CF-011 - PANEL TO WEATHERBOARD - UPPER FLOOR JUNCTION CAVITY FIX

 Image of AU-HAC-PANEL BOARD-CF-011 - PANEL TO WEATHERBOARD - UPPER FLOOR JUNCTION CAVITY FIX

Detail Download. 2D Details / Drafting Views accompany the 3D content and allow for detailed technical construction documentation.