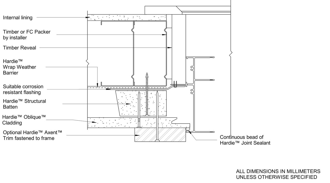
AU-HAC-BOARD-V PANEL-CF-036 - VERTICAL BOARD TO PANEL - INTERNAL CORNER HORIZONTAL JUNCTION CAVITY FIX

 Image of AU-HAC-BOARD-V PANEL-CF-036 - VERTICAL BOARD TO PANEL - INTERNAL CORNER HORIZONTAL JUNCTION CAVITY FIX

Detail Download. 2D Details / Drafting Views accompany the 3D content and allow for detailed technical construction documentation.