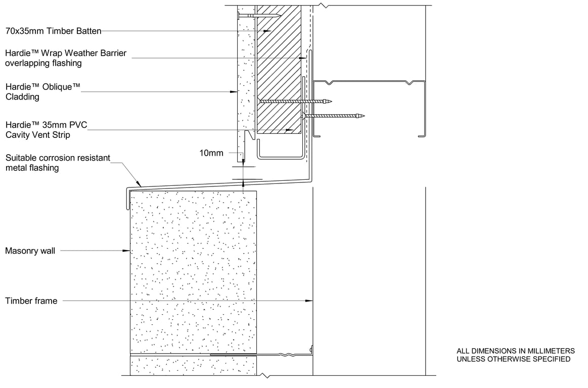
AU-AXON-T-DF-013 - UPPER FLOOR JUNCTION OPTION 1

 Image of AU-AXON-T-DF-013 - UPPER FLOOR JUNCTION OPTION 1

Detail Download. 2D Details / Drafting Views accompany the 3D content and allow for detailed technical construction documentation.