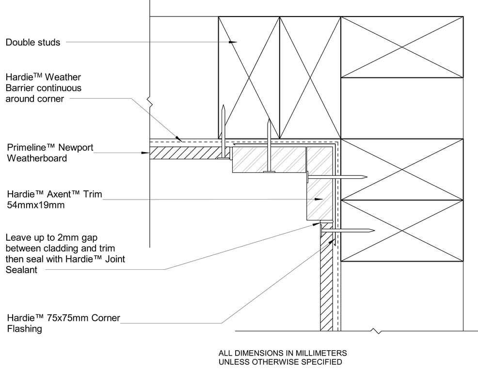
AU-AXON-T-CFTB-009-03 - SEALANT FILL INTERNAL CORNER OPTION 2

 Image of AU-AXON-T-CFTB-009-03 - SEALANT FILL INTERNAL CORNER OPTION 2

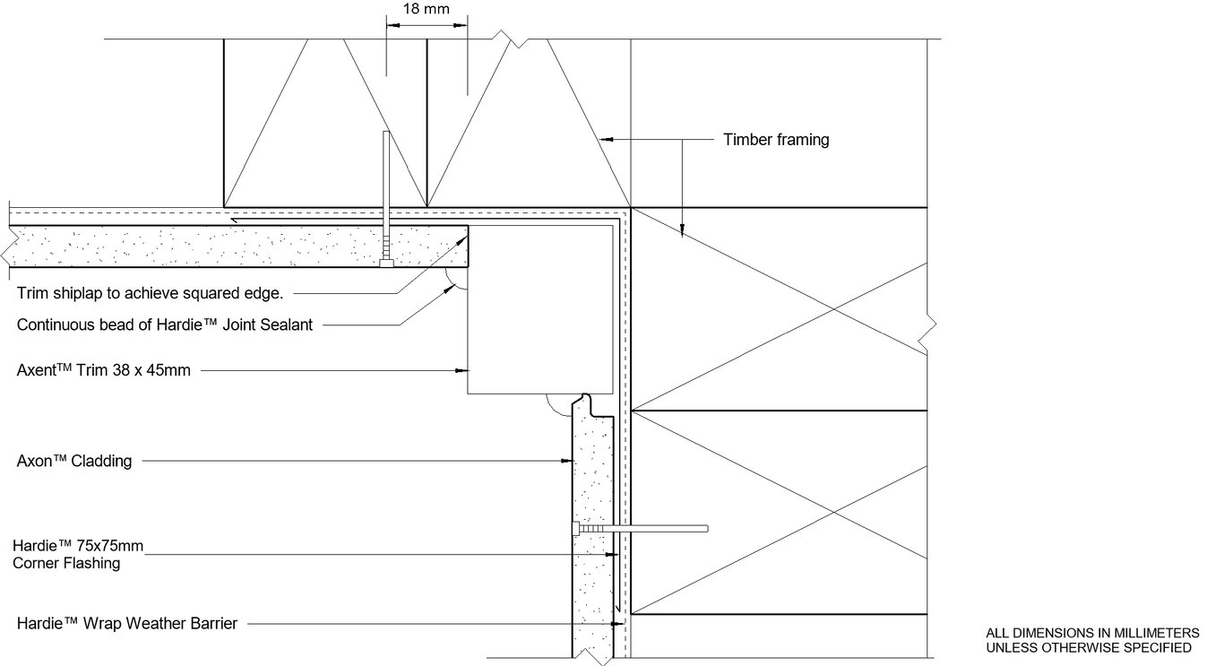
Detail Download. 2D Details / Drafting Views accompany the 3D content and allow for detailed technical construction documentation.

James Hardie Logo

Connect with the Manufacturer

RESEARCH PRODUCT