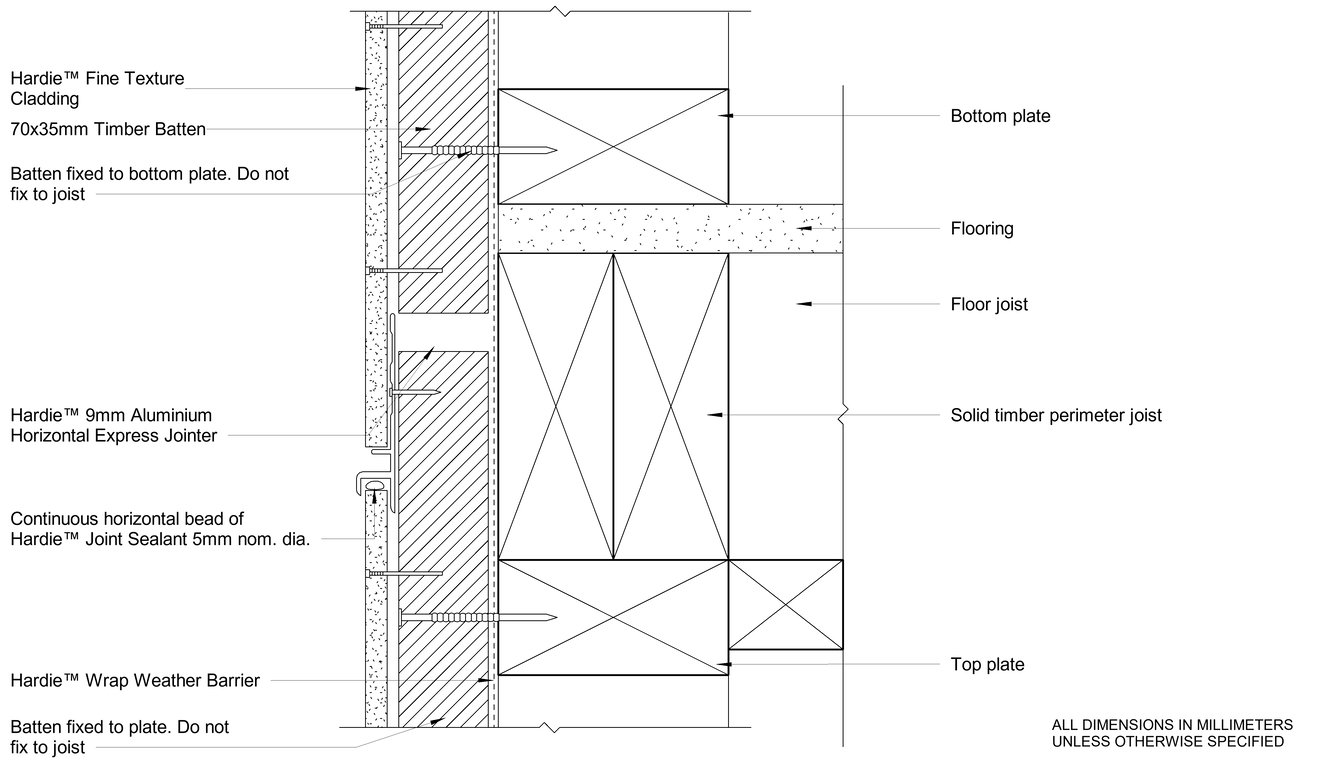
AU-AXON-T-CFFC-011 - VERTICAL BUTT JOINT

 Image of AU-AXON-T-CFFC-011 - VERTICAL BUTT JOINT

Detail Download. 2D Details / Drafting Views accompany the 3D content and allow for detailed technical construction documentation.