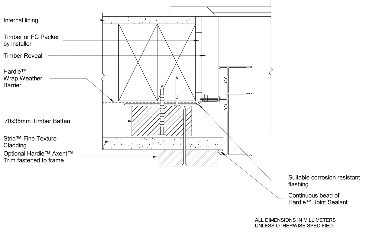
AU-AXON-T-CFFC-009-02 - ALUMINIUM INTERNAL CORNER

 Image of AU-AXON-T-CFFC-009-02 - ALUMINIUM INTERNAL CORNER

Detail Download. 2D Details / Drafting Views accompany the 3D content and allow for detailed technical construction documentation.