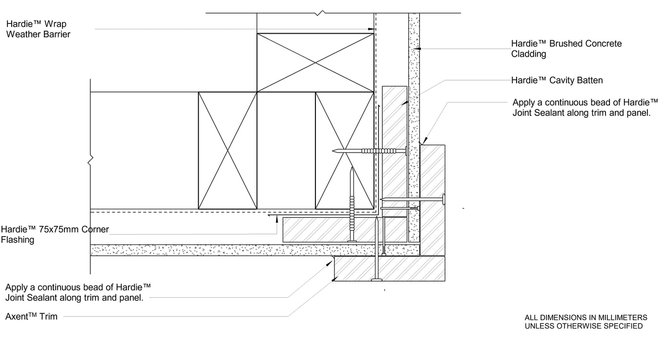
AU-AXON-T-CFFC-004 - SEALANT FILL EXTERNAL CORNER OPTION

 Image of AU-AXON-T-CFFC-004 - SEALANT FILL EXTERNAL CORNER OPTION

Detail Download. 2D Details / Drafting Views accompany the 3D content and allow for detailed technical construction documentation.