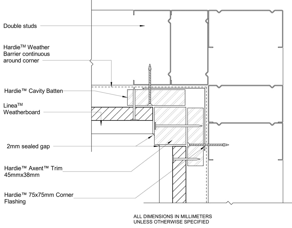
AU-AXON-S-DF-017 - MASONRY (E-G- BRICK) ABUTMENT DETAIL

 Image of AU-AXON-S-DF-017 - MASONRY (E-G- BRICK) ABUTMENT DETAIL

Detail Download. 2D Details / Drafting Views accompany the 3D content and allow for detailed technical construction documentation.

James Hardie Logo

Connect with the Manufacturer

RESEARCH PRODUCT