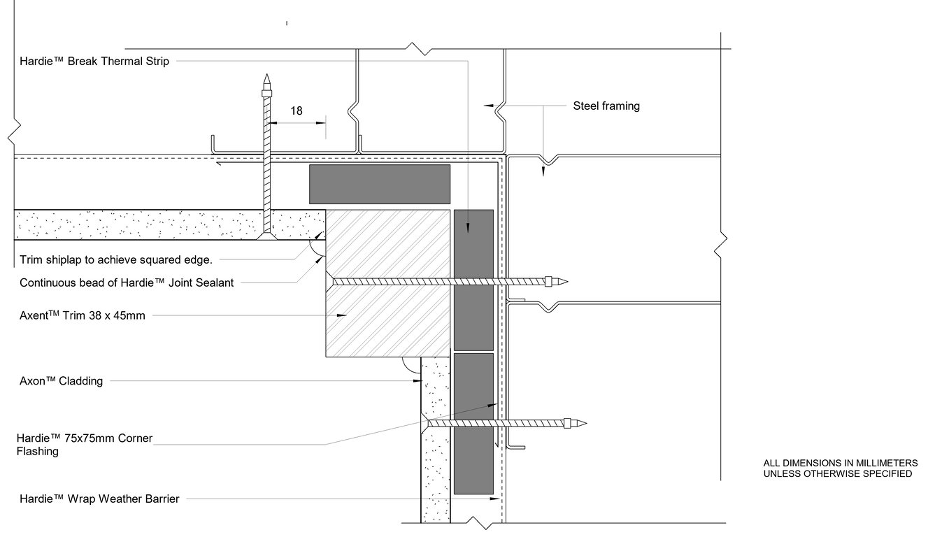
AU-AXON-S-CFFC-016 - VERTICAL BUTT JOINT DIRECT FIX

 Image of AU-AXON-S-CFFC-016 - VERTICAL BUTT JOINT DIRECT FIX

Detail Download. 2D Details / Drafting Views accompany the 3D content and allow for detailed technical construction documentation.