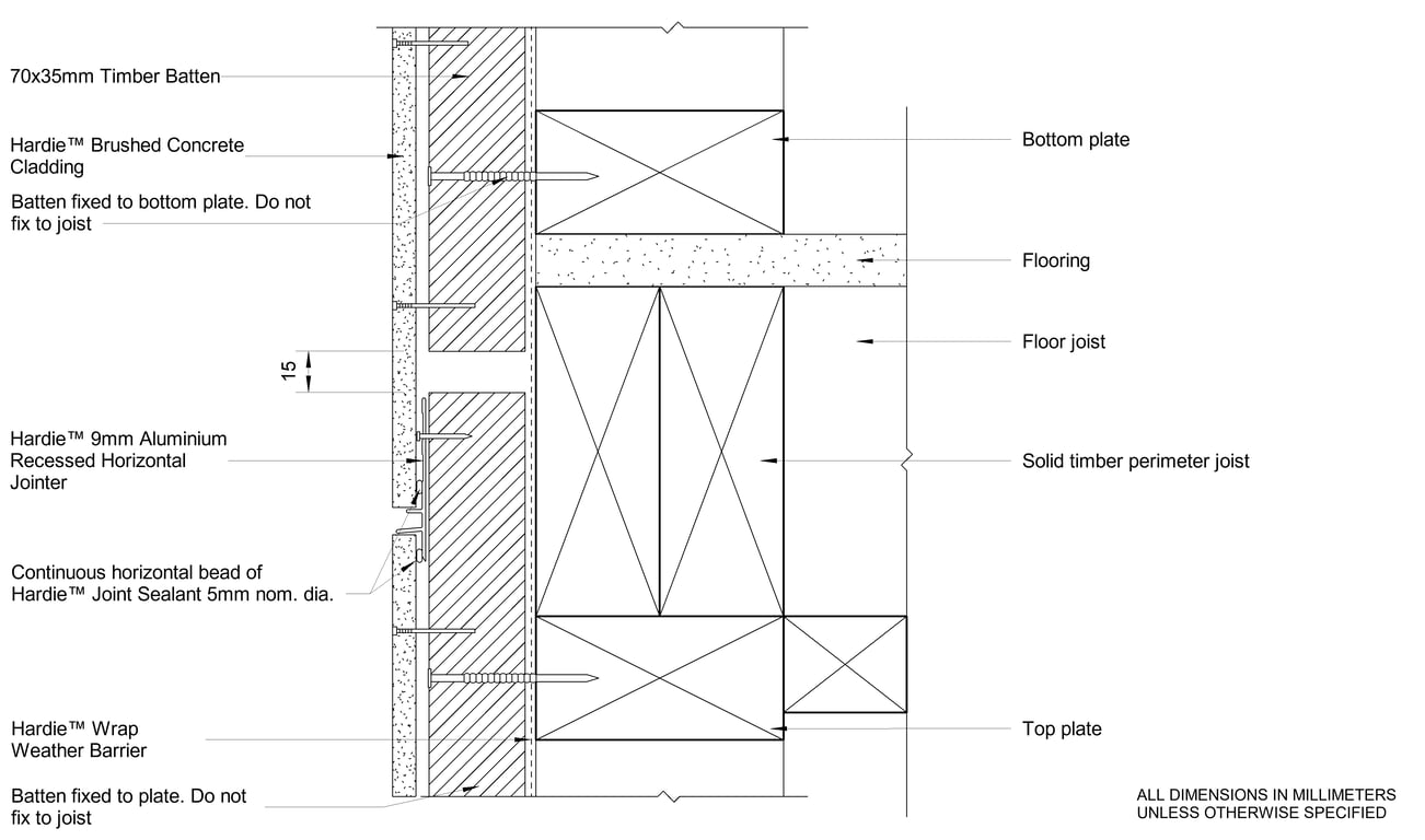
AU-AXON-S-CFFC-014 - HORIZONTAL JUNCTION OPTION 1

 Image of AU-AXON-S-CFFC-014 - HORIZONTAL JUNCTION OPTION 1

Detail Download. 2D Details / Drafting Views accompany the 3D content and allow for detailed technical construction documentation.