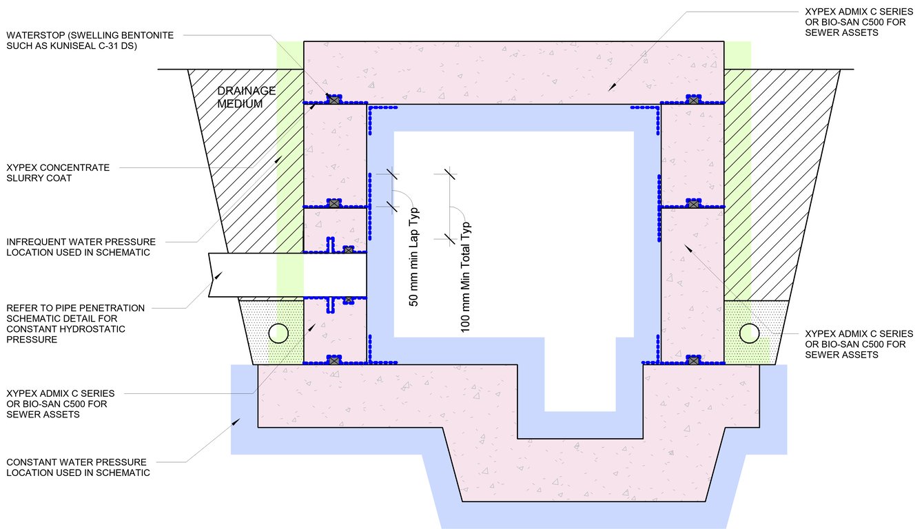
22 - Reservoir Wet Well with Constant Internal Hydrostatic Pressure

 Image of 22 - Reservoir Wet Well with Constant Internal Hydrostatic Pressure

Detail Download. 2D Details / Drafting Views accompany the 3D content and allow for detailed technical construction documentation.