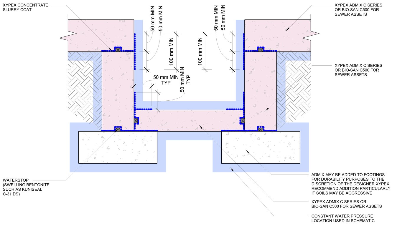
20 - Sewage Plant Clarifier Tank

 Image of 20 - Sewage Plant Clarifier Tank

Detail Download. 2D Details / Drafting Views accompany the 3D content and allow for detailed technical construction documentation.

Xypex Logo

Connect with the Manufacturer

RESEARCH PRODUCT